Chercher un bien
6 photos
Description
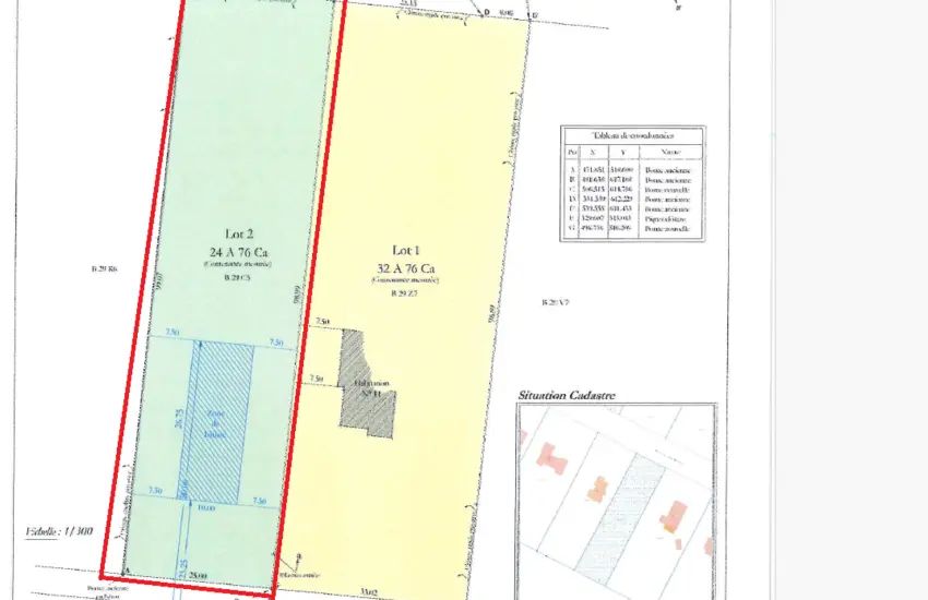
Très beau et rare terrain à bâtir à Ville-Pommeroeul avec permis de bâtir valable jusqu'en 2028. Croquis dans les photos. Possibilité de construction très rapidement. Dans le prix est compris:- Permis de bâtir avec les frais d'architecte - Etude de sol - Division par le géomètre Offre à partir de 195.000€Infos et visites: Monsieur ZAMBITO 0475/25.03.16
Caractéristiques
Général
Référence : 7198875
Catégorie : Terrain à bâtir
Meublé : Non
Jardin : Non
Garage : Non
Terrasse : Non
Parking : Non
Surface du terrain : 2476m²
Disponibilité :à l'acte
Intérieur
égouts : Oui
électricité : Oui
Eau : Oui
Extérieur
Profondeur terrain : 99





